.
نرم افزار ترسیم نقشه های مهندسی و صنعتی (autocad 2017)

autocad 2017


دوره آموزش اتوکد  معرفي نرم افزار اتوکد   نرم افزاز اتوکد |AutoCAD يکي از محصولات شرکت آمريکايي اتودسک | Autodesk است برنامه اي است با قابليت طراحي و نقشه کشي در شاخه هاي مهندسي و صنعتي  در فضاهاي دو بعدي و سه بعدي . پسوند CAD  مخفف عبارت computer Aided Drafting به معناي ترسيم فني به کمک نرم افزار است .  نرم افزار اتوکد به دلي قابليت ها و ويژگي هاي خاص خود که در ادامه به آ ن ها اشاره خواهيم کرد در زمره يکي از موفق ترين ، پرکاربردترين ، قوي ترين ، تخصصي ترين و م...

توضیحات بیشتر...

توضیحات

دوره آموزش اتوکد 
معرفي نرم افزار اتوکد 

 نرم افزاز اتوکد |AutoCAD يکي از محصولات شرکت آمريکايي اتودسک | Autodesk است برنامه اي است با قابليت طراحي و نقشه کشي در شاخه هاي مهندسي و صنعتي  در فضاهاي دو بعدي و سه بعدي . پسوند CAD  مخفف عبارت computer Aided Drafting به معناي ترسيم فني به کمک نرم افزار است . 
نرم افزار اتوکد به دلي قابليت ها و ويژگي هاي خاص خود که در ادامه به آ ن ها اشاره خواهيم کرد در زمره يکي از موفق ترين ، پرکاربردترين ، قوي ترين ، تخصصي ترين و مشهورترين نرم افزار هاي  سه بعدي دنيا قرار دارد . 
نرم افزار اتوکد با توجه به قابليتهاي خود که منجر به کاربرد آن در شاخه هاي بسياري شد ه است نسخه هاي مختلفي دارد که در ادام هبه آن هااشاره خواهيم کرد .  
نسخه هاي مختلف نرم افزار اتوکد عبارتند از : 
AutoCAD Architecture     نسخه اتو کد مناسب براي رشته معماري
AutoCAD Electrical    نسخه اتو کد مناسب براي رشته برق
AutoCAD Mechanical    نسخه اتو کد مناسب براي رشته مکانيک
AutoCAD Civil 3D    نسخه اتو کد مناسب براي عمران و راهسازي
AutoCAD Map 3D    نسخه اتو کد مناسب براي جغرافيا و شهرسازي
AutoCAD Plant 3D    نسخه اتو کد مناسب طراحي صنعتي و کارخانجات
AutoCAD MEP                نسخه اتو کد مناسب براي تاسيسات ولوله کشي
AutoCAD P&ID                نسخه اتو کد مناسب ابزار آلات و نقشه هاي تاسيساتي

تاريخچه پيدايش نرم افزار اتوکد 

تاسيس شرکت اتودسک |  Autodeskتوسط جان واکر در سال 1982 مقدمه پيدايش نرم افزار اتوکد بود . جان واکر به همراه 15 نفر بنيانگذار ديگر در نمايشگاه COMDEX لاس وگاس براي اولين بار نسخه اوليه اتوکد را معرفي کردند . نرم افزار اتوکد ظرف مدت 4 سال به يکي از پرکاربردترين ، مفيد ترين ، قدرتمندترين و معروفترين نرم افزار هاي طراحي جهان تبديل شد . 
در حال حاضر قريب به 35 سال از معرفي نسخه اوليه نرم افزار اتوکد مي گذرد و اين نرم افزار هر روز با ورژن هاي جديدتر با ابزارها و قابليت هاي بيشتر و پيشرفته تر همچنان با قدرت و بي رقيب در بازا ر عرضه مي شود و يکه تاز عرصه نرم افزارها و برنامه هاي طراحي است .
طي 35 سال گذشته تا به امروز31 نسخه جديد از برنامه اتوکد با قابليت هاي متفاوت به بازار معرفي و عرضه شده است . 

کاربرد هاي نرم افزار اتوکد

نرم افزار اتوکد يک نرم افزار تخصصي براي طراحي و ترسيم شکل ها و مدل هاي دو و سه بعدي است . از قابليت هاي اين نرم افزار ترسيم طرح حهاي دقيق با سرعت و کيفيت بالا است . به طور کلي ابزارهاي موجود در نوار ابزار برنامه اتوکد داراي قابليت ترسيم اشکال و حجم هاي مختلف هندسي است .
نرم افزار اتوکد داراي ابزار هايي است که براي طراحي ، ترسيم و مدلسازي طراحي شده اند از اين رو اين نرم افزار قابليت استفاده در همه زمينه هاي مرتبط با طراحي اشکال هندسي را دارد و به همين دليل در بسياري از موارد ورژن ها و نسخه هاي مختلف نرم افزار اتوکد را با توجه به بيشترين کاربرد آن نامگذاري مي کنند . 

بازار کار اتوکد

با توجه به حوزه وسيع کاربرد نرم افزار اتوکد ، افرادي که با شرکت در دوره هاي آموزشي اتوکد ، کسب مهارت ها و قابليت هاي مورد نياز و تمرين و ممارست بتوانند به مهارت و استادي در اين حوزه کار با اين نرم افزار دست پيدا کنند به طور حتم مي توانند در بازا کار پر رونق و رو به رشد اين نرم افزار صاحب موقعيت هاي شغلي بسيار مناسبي شوند . 
باتوجه به قابليت هاي بسيار وسيع و گسترده اين نرم افزار در عرصه طراحي و ترسيم اشکال و ابعاد هندسي متخصصان اتوکد يا همان اتوکد کاران حرفه اي مي توانند در شاخه و حوزه هاي زيادي مشغول به کار شوند . 
يکي ديگر از مزاياي نرم افزار اتوکد وآشنايي با آن اين است اتوکد کاران حرفه ايي مي توانند به صورت مستقل به انجام کارهاي پروژه اي بپردازند و يا در کنار شغل فعلي خود به انجام کارهاي پروژه اي به عنوان يک شغل نيمه وقت بپردازند و از مزاياي آن بهره مند شوند . 

برگزارکننده: مرکز آموزش مجازی پارس
ثبت نام و افزودن گواهینامه ها

سرفصل بسته ی آموزشی

به دلیل تطابق با دانش به روز و مورد تایید استانداردهای جهانی، امکان بروز رسانی و تغییر سرفصل ها وجود دارد.

فصل اول (مقدماتی)

  • ١ - مقدمه
  • ٢ - کار با محیط سه بعدی
  • ورود به برنامه – ایجاد اسناد سه بعدی – نمایش ابزارهای سه بعدی
  • ٣ - حالت های نمایشی
  • ۴ - استفاده از ViewCube
  • کار با ViewCube – منوی کلیک راست ViewCube
  • ۵ - تنظیمات ViewCube
  • تنظیمات ViewCube (١) – تنظیمات ViewCube (٢)
  • ۶ - ایجاد Named View
  • ٧ - پیمایش Viewportها
  • پیمایش Viewport توسط ماوس – کار با ابزارهای پیمایشی
  • ٨ - کار با Navigation Wheel
  • کار با Navigation Wheel (١) – کار با Navigation Wheel (٢)
  • ٩ - بزرگ نمایی و چرخاندن
  • مرور و بزرگ نمایی – کنترل بزرگ نمایی – کار با دستور Orbit
  • ١٠ - مدیریت Viewportها
  • کار با چند Viewport – تنظیمات Viewportها
  • ١١ - کار با WCS
  • ١٢ - ابزار Box
  • کار با ابزار Box – روش های ترسیم Box
  • ١٣ - کاربرد دستورات ویرایشی
  • ١۴ - ترسیم استوانه
  • کار با ابزار Cylinder – روش های ترسیم قاعده استوانه
  • ١۵ - ترسیم سایر Objectها
  • کار با ابزار Cone – کار با Sphere و Pyramid – کار با Wedge و Torus
  • ١۶ - ایجاد انواع UCS
  • کار با دستگاه های مختصات – ایجاد یک UCS جدید – زیر فرمان های UCS (١) – زیر فرمان های UCS (٢)
  • ١٧ - کاربرد UCSها
  • ترسیم اشکال به کمک UCS – کنترل نمایش UCS – تنظیم صفحه XY – کار با Gripها – ابزارهای گروه Coordinated
  • ١٨ - کار با Dynamic UCS
  • ١٩ - کار با Osnapهای سه بعدی
  • آشنایی با Osnap 3D – کار با دستگیره Vertex – تعیین مرکز اضلاع و سطوح
  • ٢٠ - آزمون های عملی
  • ۶ دوره آزمون

فصل دوم (متوسط)

  • ۱ - دستگیره های 3D Osnap
  • کار با Knot – کار با Perpendicular – مبحث تکمیلی 3D Osnap
  • ۲ - پیوسته کردن اشکال
  • ایجاد اشکال پیوسته – استفاده از دستور Boundary
  • ۳ - دستور Extrude
  • کار با دستور Extrude – ترسیم مسیر راهنما – ایجاد Objectها توسط مسیر – زیر فرمان های دستور Extrude
  • ۴ - دستور Loft
  • کار با دستور Loft – تنظیمات دستور Loft
  • ۵ - دستورهای Revolve و Sweep
  • کار با دستور Revolve – کاربرد خط محور – کار با دستور Sweep
  • ۶ - ابزار Polysolid
  • کار با ابزار Polysolid – تنظیمات ابزار Polysolid
  • ۷ - دستور Presspull
  • ۸ - ترکیب Objectها
  • کار با دستور Union – کار با Subtract و Intersect
  • ۹ - طراحی Objectهای ترکیبی
  • ایجاد Objectهای ترکیبی – کار با دستور Interfere – تکمیل Object ترکیبی
  • ۱۰ - گرد و پخ کردن لبه ها
  • کار با Fillet Edge – کار با Chamfer Edge
  • ۱۱ - ابزار Slice
  • کار با ابزار Slice – زیر فرمان های ابزار Slice
  • ۱۲ - تنظیم Gripها
  • کار با Gripها – اشکالی ترکیبی و Gripها
  • ۱۳ - دستورات ویرایشی Faceها
  • دستورات ویرایشی Faceها (۱) – دستورات ویرایشی Faceها (۲)
  • ۱۴ - ایجاد یک اتاق خواب ساده
  • پیاده سازی نقشه های دوبعدی – طراحی آباژور
  • ۱۵ - کار با Meshها
  • آشنایی با Meshها – ایجاد Meshها
  • ۱۶ - تنظیمات Meshها
  • تنظیم میزان نرم شدگی – انتخاب اجزای Mesh – کار با گیزموها – ویژگی Crease
  • ۱۷ - مدیریت Faceها
  • ویرایش Faceها – تبدیل Mesh به Face
  • ۱۸ - کار با Surfaceها
  • آشنایی با Surfaceها – ترسیم Surfaceها
  • ۱۹ - ویرایش Surfaceها
  • ارتباط Extrude و Surface – ارتباط  Loftو Surface – استفاده از Revolve و Sweep
  • ۲۰ - آزمون های عملی
  • ۶ دوره آزمون عملی

فصل سوم (پیشرفته)

  • ۱ - دستورات ویرایشی Surfaceها
  • کار با دستور Blend – کار با Patch و Offset
  • ۲ - ارتباط Mesh و Surface
  • کار با Revolving Surface – ابزارهای گروه Primitives
  • ۳ - طراحی لوکوموتیو
  • ۴ - سه بعدی سازی اشکال دو بعدی
  • سه بعدی سازی اشکال دو بعدی (١) – سه بعدی سازی اشکال دو بعدی (٢) – سه بعدی سازی اشکال دو بعدی (۳)
  • ۵ - درج هاشور
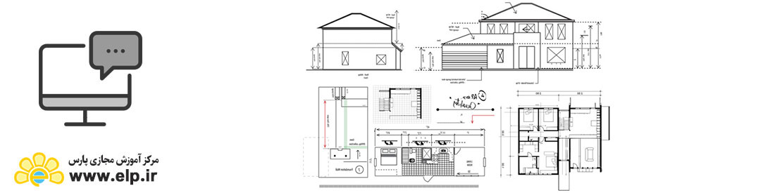
  • ۶ - طراحی ساختمان بر اساس نقشه
  • کار با نقشه های مهندسی – سه بعدی سازی نقشه ها – ایجاد دیوارهای دوجداره – ایجاد قاب پنجره – تکمیل ساختمان
  • ۷ - نمای Layout
  • کار با Layout – درج Viewportها
  • ۸ - طراحی بر اساس تصویر
  • درج تصویر در Viewport – ایجاد سازه ها
  • ۹ - ایجاد برش های دوبعدی
  • ۱۰ - استفاده از Flatshot
  • کار با Flatshot – ارتباط Flatshot و زاویه دید – به روز رسانی Flatshot
  • ۱۱ - استفاده از Sectionها
  • کار با دستور Section – کار با Live Section
  • ۱۲ - مدیریت Sectionها
  • تنظیمات Section Plane (١) – تنظیمات Section Plane (٢) –  ایجاد سطوح دو و سه بعدی – تنظیمات ایجاد Live Section
  • ۱۳ - نورپردازی
  • اصول نورپردازی – کنترل تنظیمات نورپردازی
  • ۱۴ - انواع نورپردازی
  • نورپردازی Architectural – نورپردازی Mechanical
  • ۱۵ - کار با Sun Status
  • کار با Sun Status
  • ۱۶ - استفاده از Materialها
  • کار با Materialها – درج Materialها
  • ۱۷ - طراحی انواع Material
  • ایجاد Materialهای جدید – درج تصویر در Material
  • ۱۸ - تنظیمات Render
  • تنظیمات Render
  • ۱۹ - دوربین و انیمیشن
  • درج دوربین – کار با Walk و Fly – ایجاد انیمیشن (١) – ایجاد انیمیشن (٢)
  • ۲۰ - آزمون های عملی
  • ۶ دوره آزمون عملی
۷ روز هفته ۲۴ ساعته پاسخگوی شما هستیم.